mikrorezidenca Mesarska
avtor Tadej Rezar
lokacija Ljubljana
leto projekta 2016
leto izvedbe 2017
tipologija interier
površina 36 m2
investicija 30.000€
lokacija Ljubljana
leto projekta 2016
leto izvedbe 2017
tipologija interier
površina 36 m2
investicija 30.000€




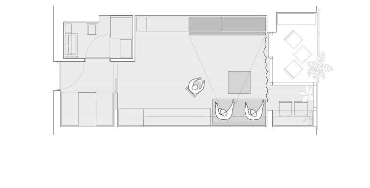
Mikrorezidenca Mesarska predstavlja zgoščen
mikrouniverzum klasičnega več sobnega stanovanja na minimalni kvadraturi z enim
prostorom. Zasnova sobe »stisne« v čudežne omarice, ki stanovanje po potrebi
transformirajo v različne sobe. Omarice se skupaj sestavijo v dve celostenski
omari, ki obod stanovanja izolirata od sosednjih, ter virtualno definirata navidezno
prazen prostor. S pametno izrabo majhnih kotičkov, ter uporabe štirih dimenzij,
garsonjera postane programsko ekvivalentna t.i. dvoinpolsobnemu stanovanju za polovico investicije.








